2d cad drawing of bedroom living area autocad file
Description
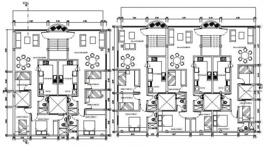
2d cad drawing of bedroom living area autocad file detailed with bedroom plan with all mentioned description with single and double bedroom and dining area elevation shown in drawing wit kitchen area shown in drawing with mentioned dimension.
File Type:
DWG
File Size:
241 KB
Category::
Interior Design
Sub Category::
Bathroom Interior Design
type:
Gold
Uploaded by:
Eiz
Luna

