Library and coffee shop autocad software
Description
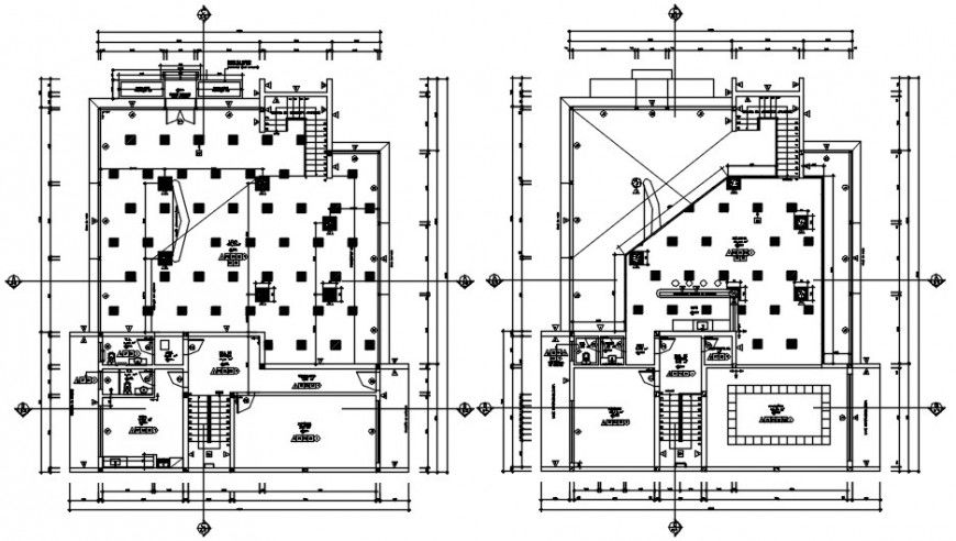
Library and coffee shop autocad software detailed with basic description with all basic detail with menbtioned cafeteria and coffee shop area shown with all basic panel construction shown with mentioned detail and staircase area and mentioned description.
Uploaded by:
Eiz
Luna

