2d cad drawing of library and coffee shop exterior autocad software
Description
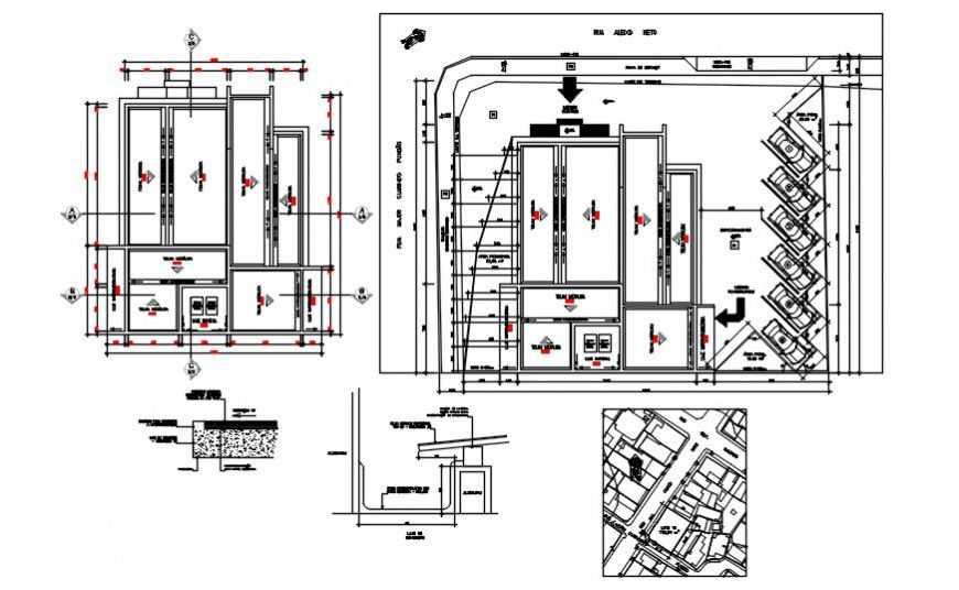
2d cad drawing of library and coffee shop exterior autocad software detailed with floor elevaton shown with bulding exterior and staitrcase elevation and parking area shown in drawing and other detaiuled with long pipe construction.
Uploaded by:
Eiz
Luna

