2d cad drawing of school elevation AutoCAD software
Description
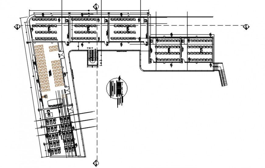
2d cad drawing of school elevation autocasd software detailed with basic classroom with all windows and door elevation and other detailed with classroom with door level and other staircase area.
Uploaded by:
Eiz
Luna

