2d cad drawing of basic structure house autocad file
Description
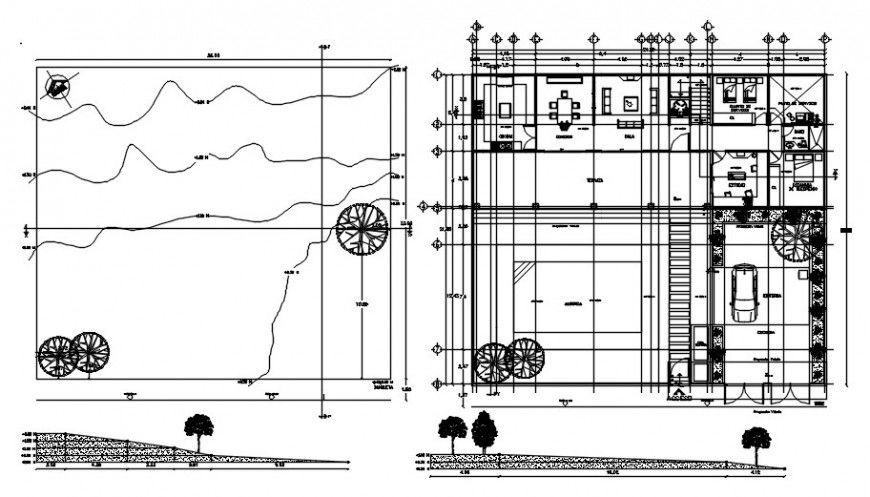
2d cad drawing of basic strture house autocad file detailed with basic car parking and other mentioned route lines shown with all garden elevation shown with mentioned dining area and other bedroom plan.
File Type:
DWG
File Size:
2.3 MB
Category::
Construction
Sub Category::
Construction Detail Drawings
type:
Gold
Uploaded by:
Eiz
Luna

