CAD floor house plan 2d view drawing dwg autocad file
Description
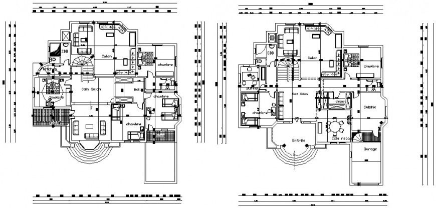
CAD floor house plan 2d view drawing dwg autocad file that shows housing bungalow plan details along with room detail of room bedroom kitchen and dining area sanitary toilet bathroom details.Dimension detail and staircase details with floor level details also included in drawings.
Uploaded by:
Eiz
Luna
