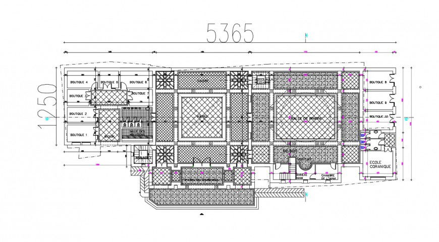
2d cad drawing of mosque top elevation autocad software
Description
2d cad drawing of mosque top elevation autocad software detailed with all two floor hall elevaytion with all different boutique and other public toilet elevation and othr floor ceiling layout and other common area elevation with reception area.
Uploaded by:
Eiz
Luna

