Sports center with swimming pool section and plan drawing details dwg file
Description
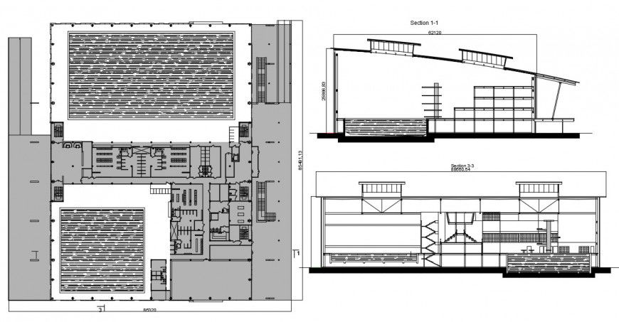
Sports center with swimming pool section and plan drawing details that includes a detailed view of flooring view, doors and windows view, staircase view, balcony view, wall design, dimensions, roof or terrace view, car parking view, change room, dressing room, play area, pitch, sports ground, audience seating area, vip seating area, admin office, landscaping are and much more of sports center details.
Uploaded by:
Eiz
Luna
