Swimming pool distribution plan cad drawing details dwg file
Description
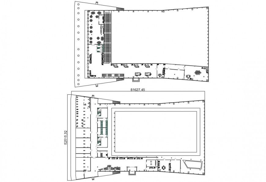
Swimming pool distribution plan cad drawing details that includes water storage and swimming area, desk and furniture layout, tree and plant and much more of swimming pool details.
Uploaded by:
Eiz
Luna

