2d cad drawing of restaurant design elevation autocad software
Description
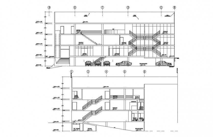
2d cad drawing of restaurant elevation autocad software detailed with three floor with basement car parking and staircase seen in drawing with door elevation and other balcony with mentyioned dimension shown in drawing.
Uploaded by:
Eiz
Luna
