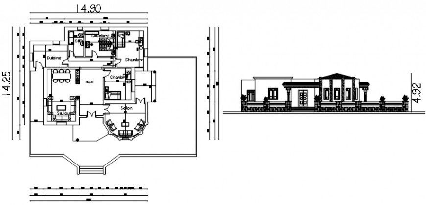
Elevation and floor plan of House CAD drawings autocad software file
Description
Elevation and floor plan of House CAD drawings autocad software file that includes floor plan details of the house along with Room details of drawings room bedroom kitchen and dining area sanitary toilet bathroom details also included in drawings with dimension hidden line elevation details.
Uploaded by:
Eiz
Luna

