Arch apartment design section plan autocad software
Description
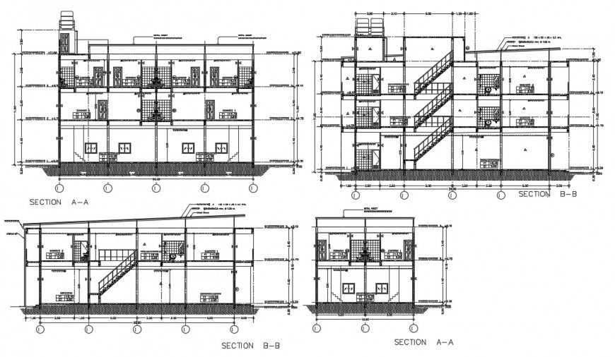
Arch apartment design section plan autocad software detaieled with basic section plkan with all small windows and door elevation shown wth description and other staircase area and mentiond with dimension and other connected detail
Uploaded by:
Eiz
Luna
