Salon house exterior elevation autocad software
Description
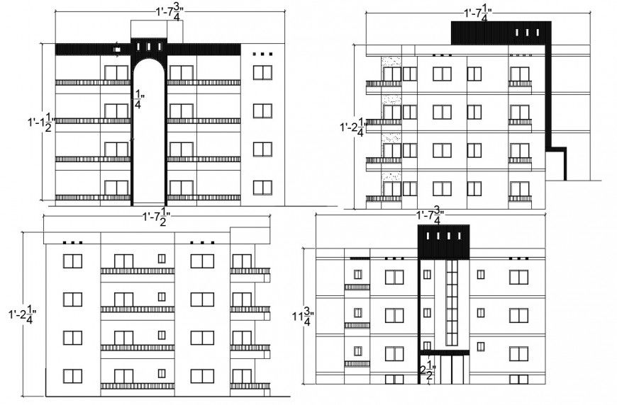
Salon house exterior elevation autocad software detailed with basic plan with windows and balcony elevation and other detailed description shown in drawing with all basic detail and water tank detail and mentioned dimension with side balcony seen in front elevation and four floor windows and door shown in drawing.
Uploaded by:
Eiz
Luna
