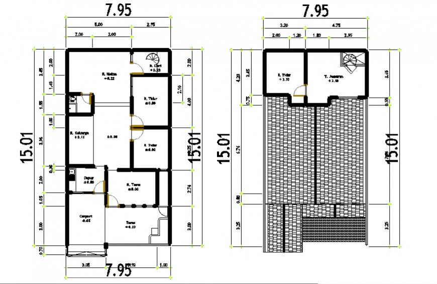
Drawings details of the house with roof plan details in autocad file
Description
Drawings details of the house with roof plan details in autocad file that shows housework plan drawings details with room details of drawing-room bedroom kitchen dining area sanitary toilet bathroom details also included in drawings with room dimension details and parking space details also inlcuded in drawings.
Uploaded by:
Eiz
Luna
