2d cad drawing of cctv and public add autocad file
Description
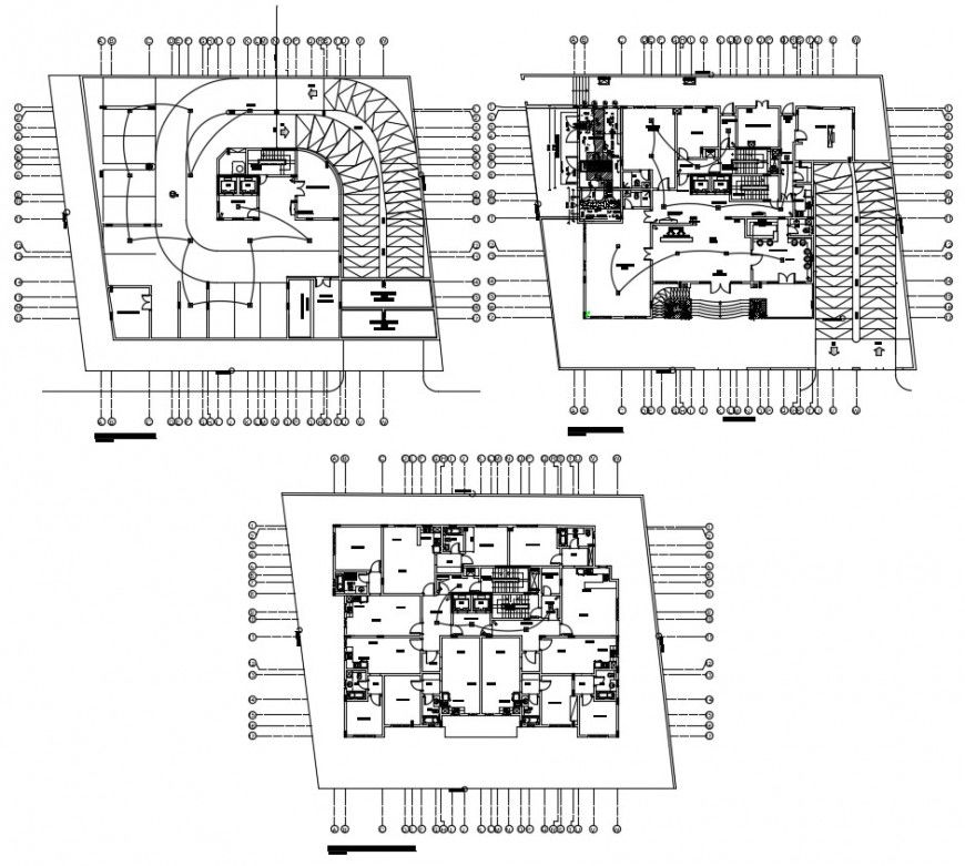
2d cad drawing of cctv and public add autocad file detailed with basic description with all floor house drawing plan and other floor electrical connection and mentioned dimension with three drawing floor plan with all electricsl connection.
File Type:
DWG
File Size:
3.7 MB
Category::
Electrical
Sub Category::
Electrical Automation Systems
type:
Gold
Uploaded by:
Eiz
Luna

