2d drawings detail of foundation footing plan dwg file
Description
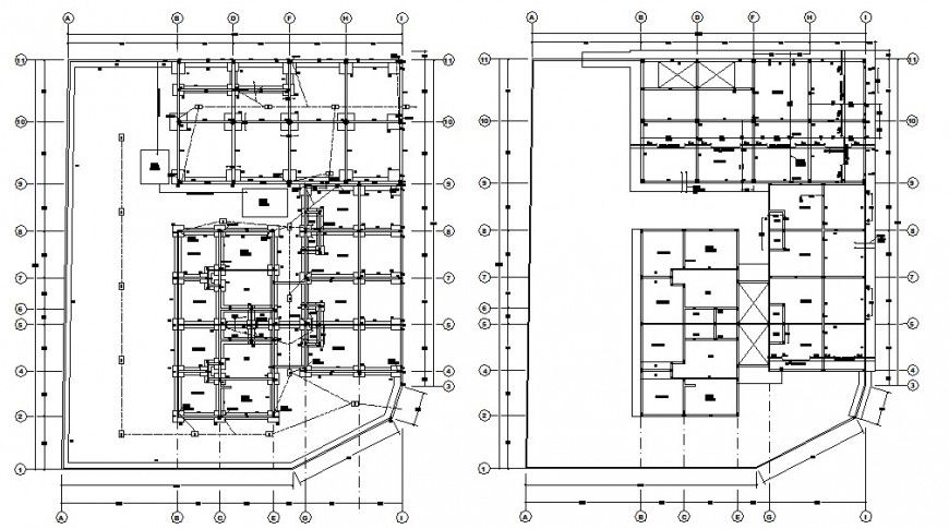
2d drawings detail of foundation footing plan dwg file that shows foundation details along with footing space details and dimension details. The structure is a reinforced concrete cement (RCC) structure.
Uploaded by:
Eiz
Luna

