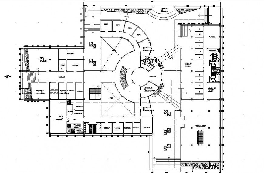
Commerce building hub 2d view CAD drawings details in Autocad file
Description
Commerce building hub 2d view CAD drawings details in Autocad file that shows work plan drawing details of building along with floor level details and section line details dimension hidden line details also included in drawings.
Uploaded by:
Eiz
Luna

