Drawing details of living housing apartment dwg file
Description
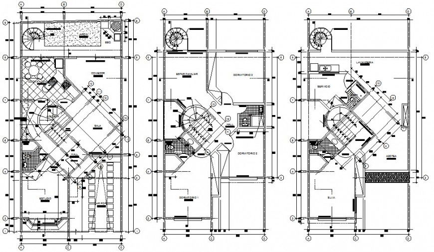
Drawing details of living housing apartment dwg file that shows apartment plan details with dimension hidden line details and compound wall details and some furniture blocks details staircase details also included in drawings.
Uploaded by:
Eiz
Luna

