Construction plan of house 2d view CAD drawings dwg autocad file
Description
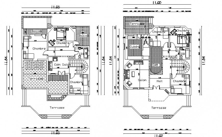
Construction plan of house 2d view CAD drawings dwg autocad file that shows work plan drawings details of the apartment along with room dimension furniture blocks details dimension hidden line details also included in drawings. Staircase details with length width details also included in drawings.
Uploaded by:
Eiz
Luna

