Hall steel elevation drawing autocad software

Hall steel elevation  drawing autocad software
Profile

Uploaded by:

Eiz

Luna

Description

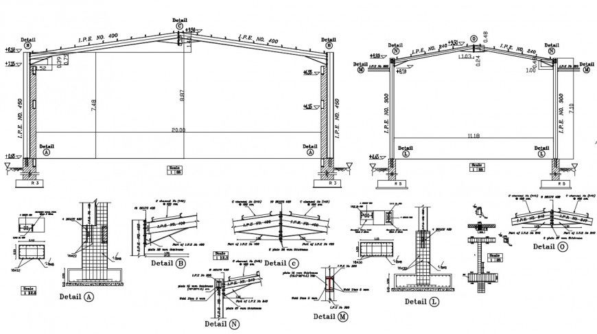
Hall steel elevation autocad software detailed with basic connection detail with all strture base and seen with connected parts and other elevation with long wall strture and hatch lines given for drawing.

Profile

Uploaded by:

Eiz

Luna

find Latest

Related Files

WhatsApp Chat