2d cad drawing of site plan elevation autocad software
Description
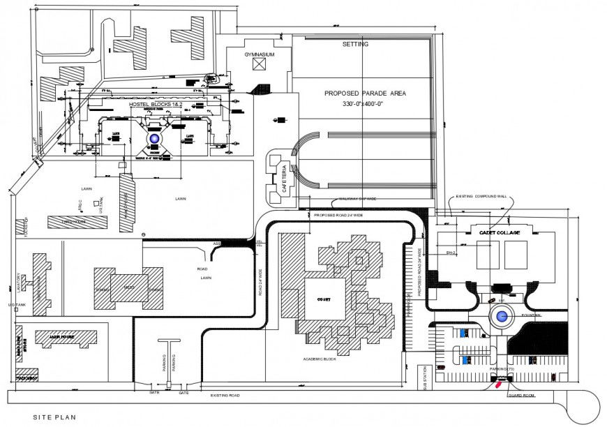
2d cad drawing of site plan elevation autocad software detailed with basic description shown with floor plan and collage gate elevation and proposed parade area and court elevation and other parki ng elevation.
Uploaded by:
Eiz
Luna

