Drawings details of housing bungalow apartment dwg autocad file
Description
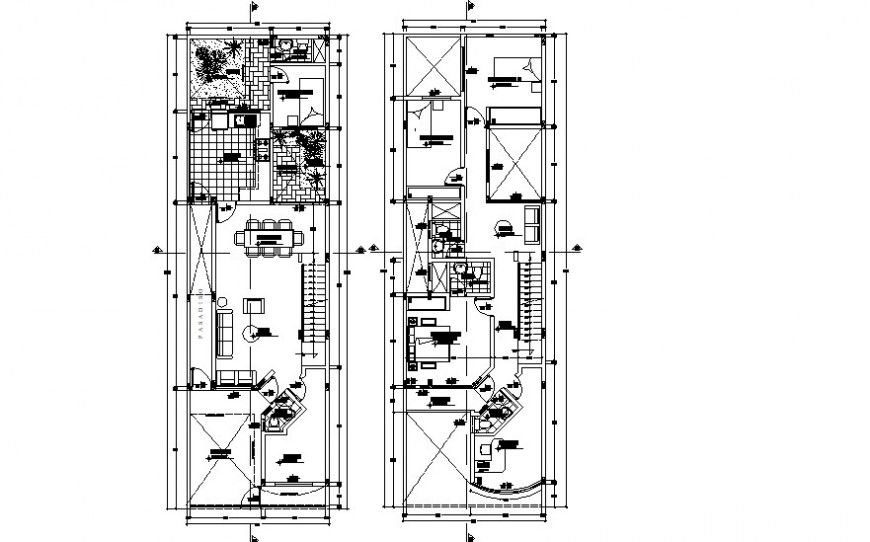
Drawings details of housing bungalow apartment dwg autocad file that show Housing apartment plan details along with floor level details and room details includes details of drawings room, bedroom, kitchen and dining area, sanitary toilet bathroom details section line details dimension hidden line details also included in drawings.
Uploaded by:
Eiz
Luna

