Foundation Design
Description
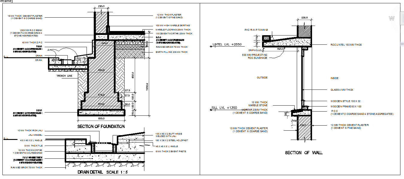
Detailing of Foundations design thats to learn build work.A foundation is the element of an architectural structure which connects it to the ground, and transfers loads from the structure to the ground.Foundation Design Download detail, Foundation Design DWG file.

Uploaded by:
Jafania
Waxy

