Drawings details of housing bungalow dwg autocad software file
Description
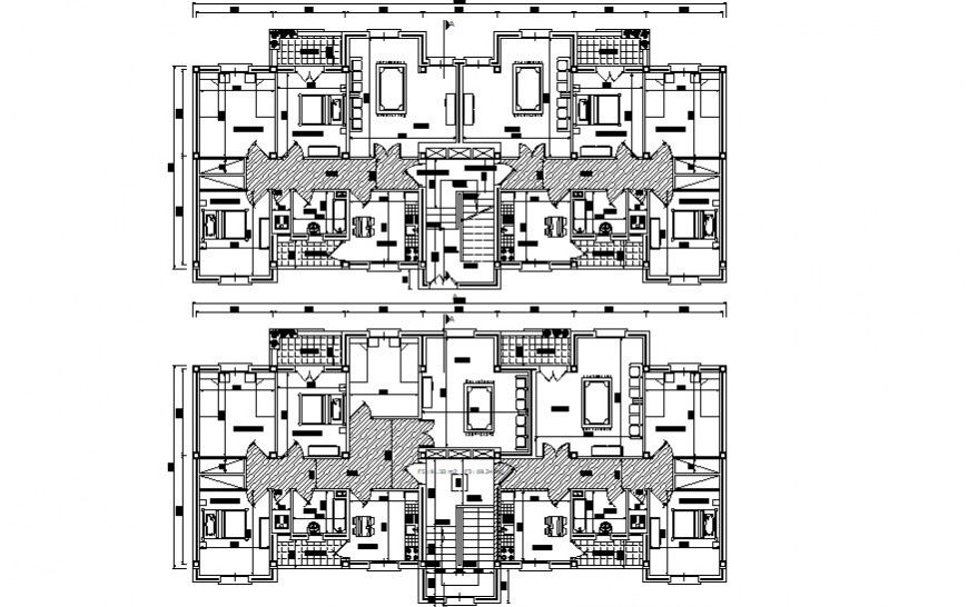
Drawings details of housing bungalow dwg autocad software file that shows housing apartment with floor level details dimension hidden line details furniture blocks details. Room details include details of drawings room, bedroom, kitchen and dining, sanitary toilet bathroom details also included in drawings.
Uploaded by:
Eiz
Luna

