Section details and foundation plan of building 2d view dwg file
Description
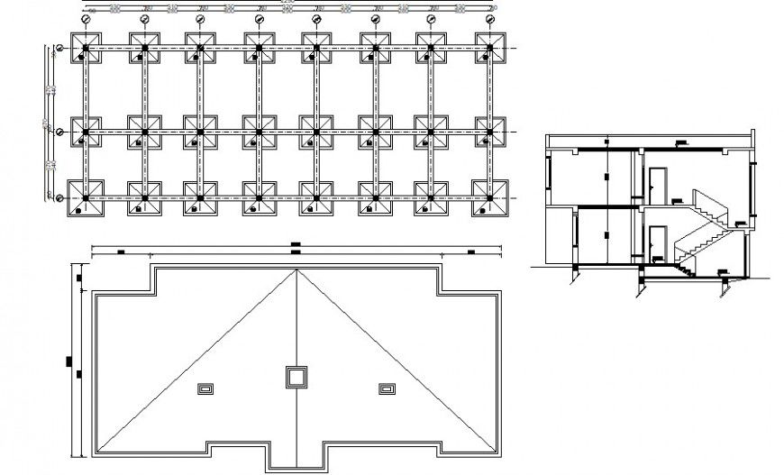
Section details and foundation plan of building 2d view dwg file that shows sectional drawings details of the apartment with terrace plan details and foundation plan details also included in drawings.
Uploaded by:
Eiz
Luna

