2d cad drawing of door elevation types autocad file
Description
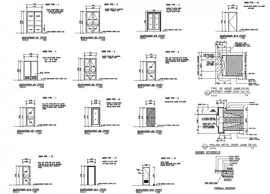
2d cad drawing of door elevation tyoes autocad file detailed with all basic description with different types of all different view with mentioned diemsion and typical section and wood jamb without door leaf.
File Type:
DWG
File Size:
383 KB
Category::
Dwg Cad Blocks
Sub Category::
Windows And Doors Dwg Blocks
type:
Gold
Uploaded by:
Eiz
Luna

