architecture elevation design cad file
Description
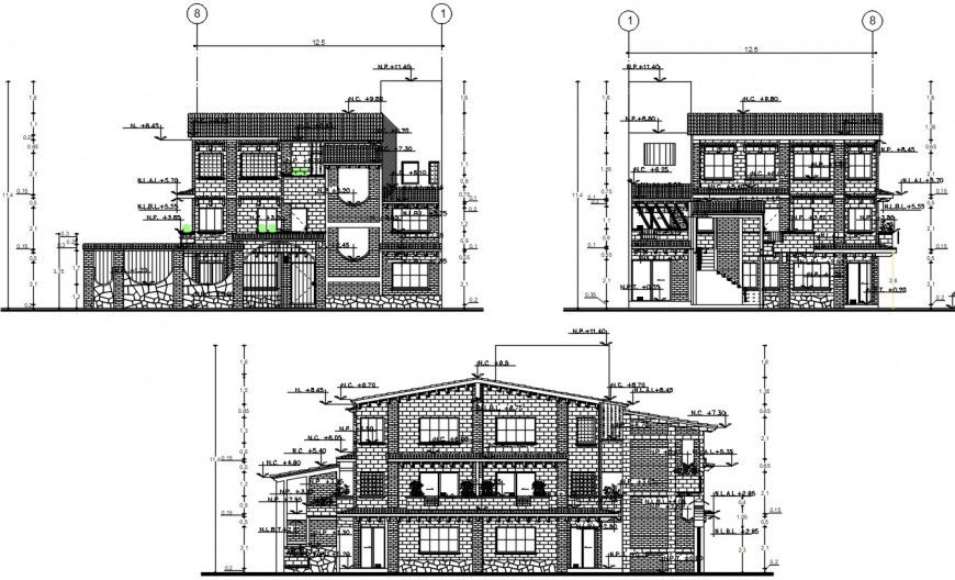
architecture elevation design cad drawing details that include a detailed view of flooring view with indoor and outdoor doors and windows view and staircase elevation and sectional view details, balcony view with wall design, and dimensions and roof or terrace view and much more of residence 2 story building details.
Uploaded by:
Eiz
Luna

