Swimming Pool Project
Description
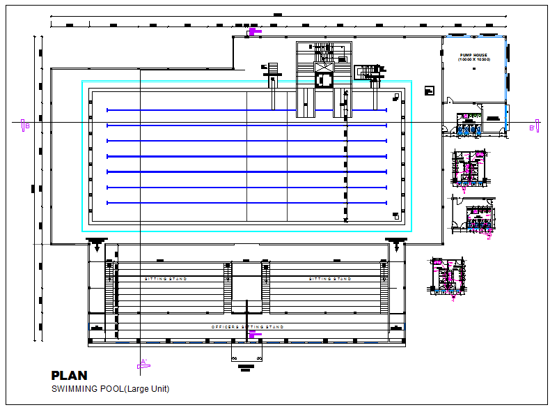
Swimming Pool Project Download file, Swimming Pool Project Design DWG file. Proper sanitation is needed to maintain the visual clarity of water and to prevent the transmission of infectious water borne diseases.This Swimming Pool Design Draw in autocad format.

Uploaded by:
Jafania
Waxy

