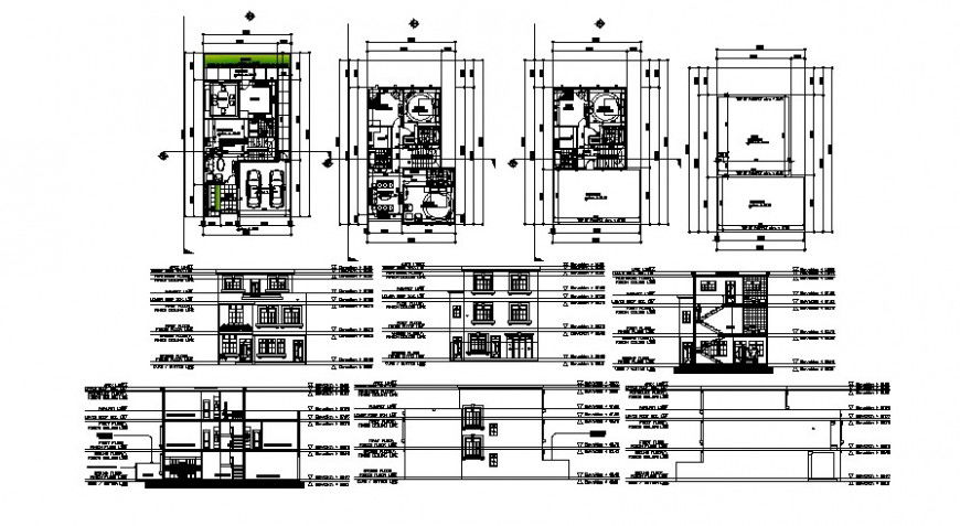
2d drawings details elevation plan and a section of housing apartment dwg file
Description
2d drawings details elevation plan and a section of housing apartment dwg file that shows housework pan drawings details along with floor level details and dimension hidden line details section line details also included in drawings. House different sides of elevation with sectional details of house also included in drawings.
Uploaded by:
Eiz
Luna

