Drawings plan of parking space 2d view dwg autocad file
Description
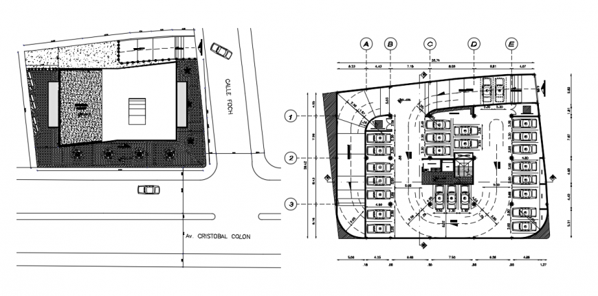
Drawings plan of parking space 2d view dwg autocad file that shows 90-degree parking system details along with ramp details parking space vehicle blocks details. Road network details dimension section line details also included in drawings.
Uploaded by:
Eiz
Luna

