2 BHK Apartment layout drawing cad file
Description
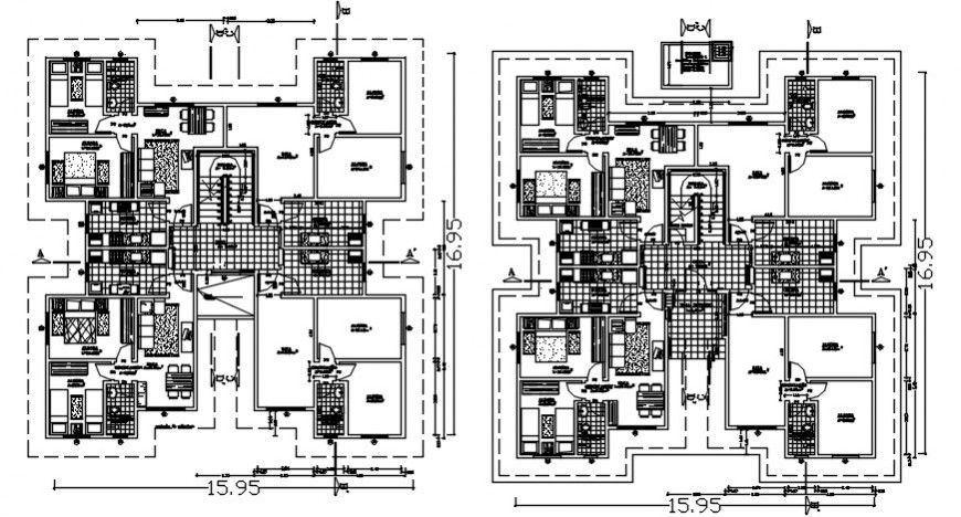
the architecture layout plan of 4 story apartment housing building cad file includes 2 bedrooms, kitchen, drawing room, dining area, staircase detail cad file along with all furniture detail, description detail and all dimension detail autocad file, collection of fabulous ideas that would serve as a good source of inspiration of cad presentation.
Uploaded by:
Eiz
Luna

