House living apartment elevation plan and sectional drawings in autocad file
Description
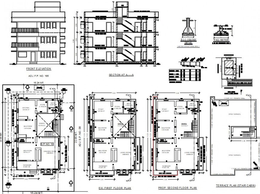
House living apartment elevation plan and sectional drawings in autocad file that shows work plan drawings details of the house with floor level details along with room details of drawings room, bedroom, kitchen and dining area, sanitary toilet bathroom details also included in drawings. House different sides of elevation and sectional details also shown in drawings.
Uploaded by:
Eiz
Luna

