CAD structural drawing details of electrical installation in building dwg file
Description
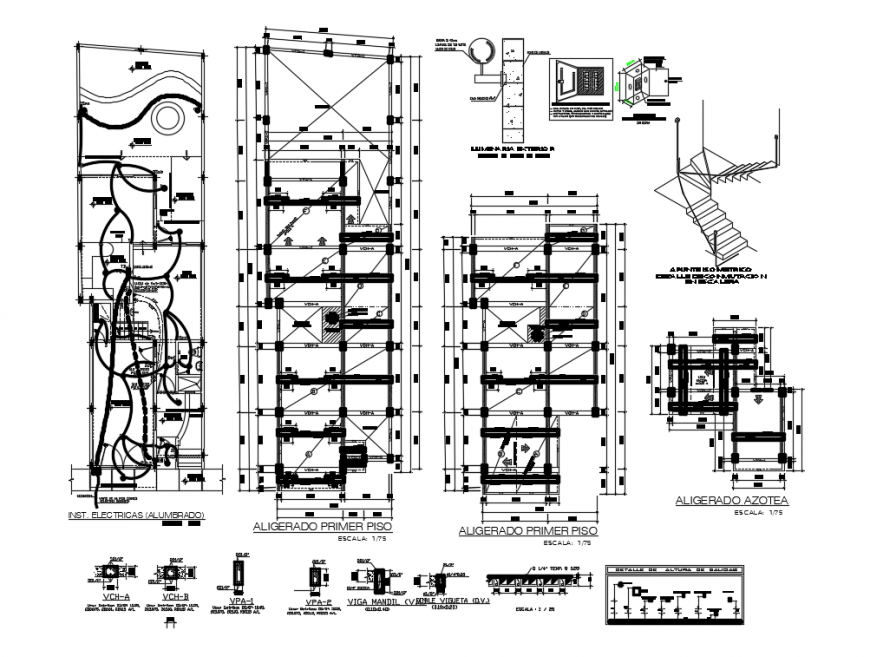
CAD structural drawing details of electrical installation in building dwg file that shows electrical installation plan dteials in building with fuse circuits dteials and eartyhing wiure dteials also included in drawoinsg.
Uploaded by:
Eiz
Luna
