CAD section and elevation drawings details of bungalow dwg file
Description
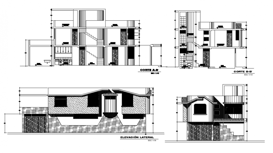
CAD section and elevation drawings details of bungalow dwg file that shows housing bungalow different sides of elevation like front elevation and side elevation. Sectional details of the house with staircase details floor level details also included in drawings.
Uploaded by:
Eiz
Luna

