Plan for lab elevation AutoCAD file
Description
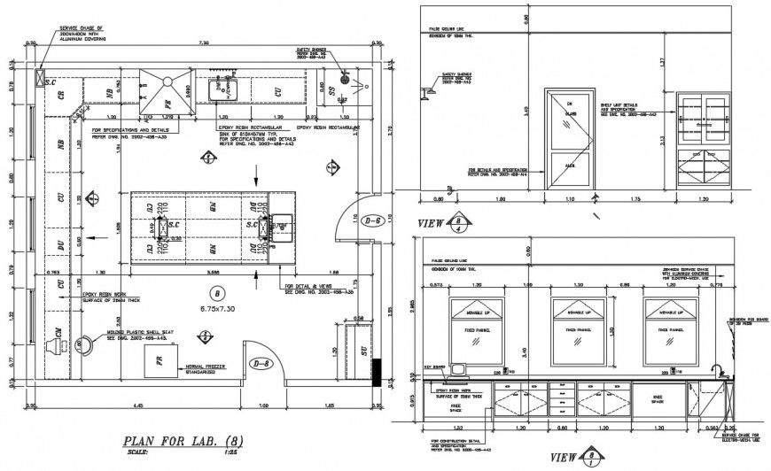
Plan for lab elevation autocad file detail with all slab area in all corner and mentioned wash basin on both side and other storage glass cabinet and door level shown and view drawing with for window seen in drawing and other mentioned and all side door elevation .
Uploaded by:
Eiz
Luna

