2d cad drawing of lab top elevation AutoCAD file
Description
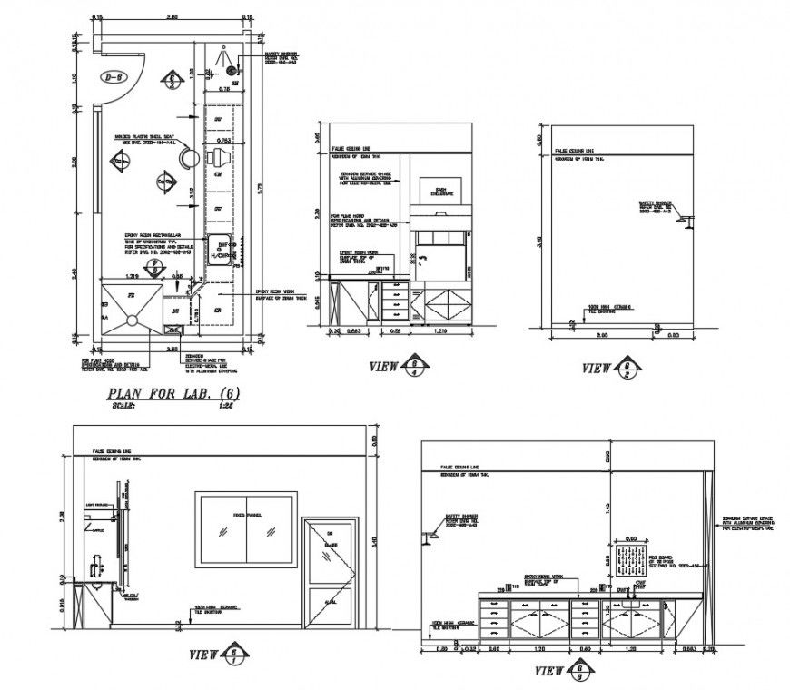
2d cad drawing of lab top elevation autocad file dtaield with basic strtur plan with all lab area shown in consent detail and door and windw elevation with slab unit and storage area inner area with all required detail and other top view with wash basin and other detailed cabinets.
Uploaded by:
Eiz
Luna

