2d cad drawing plan of warehouse industrial AutoCAD software
Description
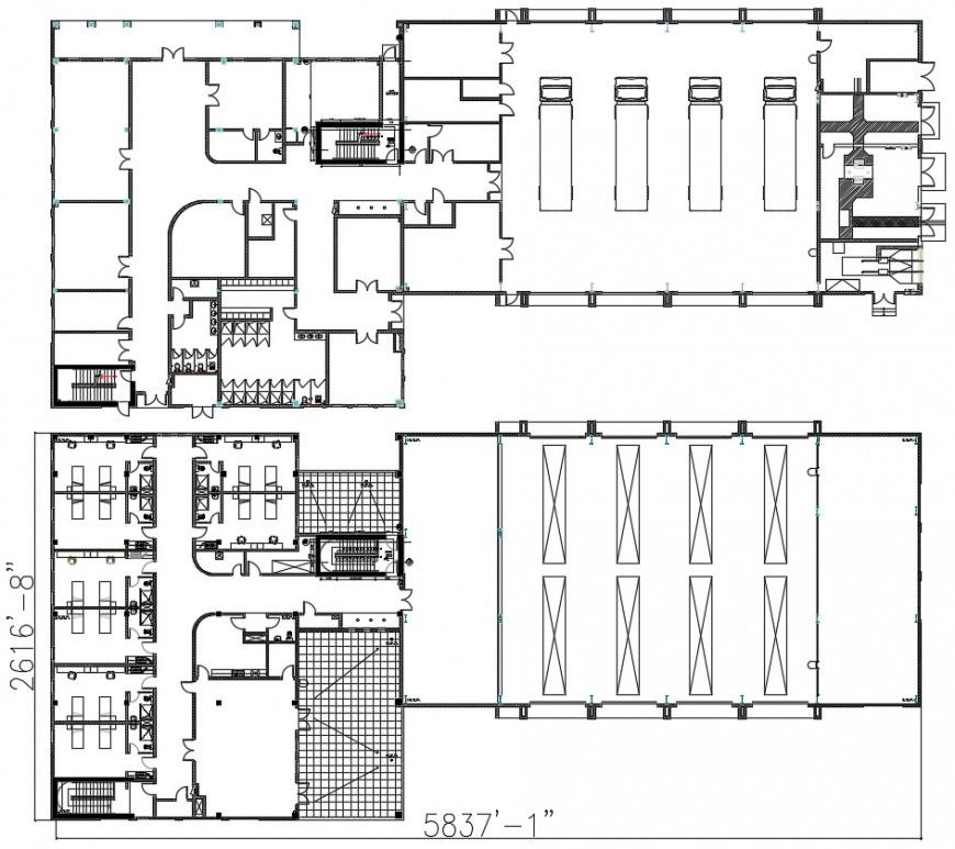
2d cad drawing plan of warehouse industrial autocad software detailed with all basic elevation with room and other panel industry machines and space around and other detailed public toilet and kitchen area and other waste store room.
Uploaded by:
Eiz
Luna

