CAd sectional drawing details of door window blocks dwg file
Description
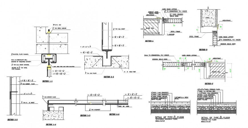
CAd sectional drawing details of door window blocks dwg file that shows lintel details with steel brackets details and joints connections dimension naming text details also included in drawings.
File Type:
DWG
File Size:
591 KB
Category::
Dwg Cad Blocks
Sub Category::
Windows And Doors Dwg Blocks
type:
Gold
Uploaded by:
Eiz
Luna

