CAD structural drawings details of roof shade dwg file
Description
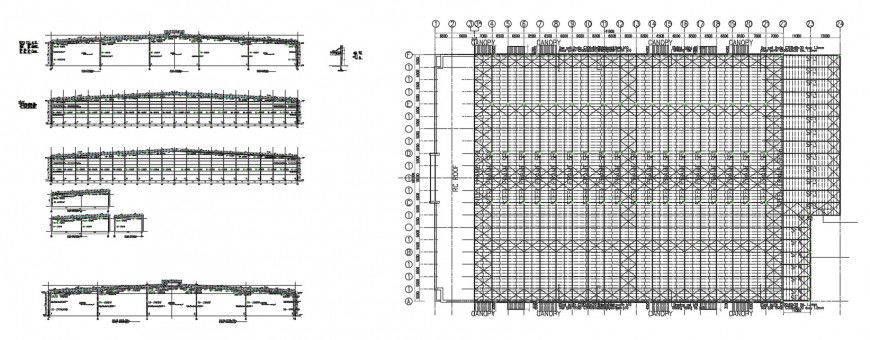
CAD structural drawings details of roof shade dwg file that shows roof plan details with roofing material details and dimension hid line details. Welded bolted joints and connections along with roof span details also included in drawings.
File Type:
DWG
File Size:
836 KB
Category::
Construction
Sub Category::
Construction Detail Drawings
type:
Gold
Uploaded by:
Eiz
Luna

