Autocad drawing of basketball stadium plans
Description
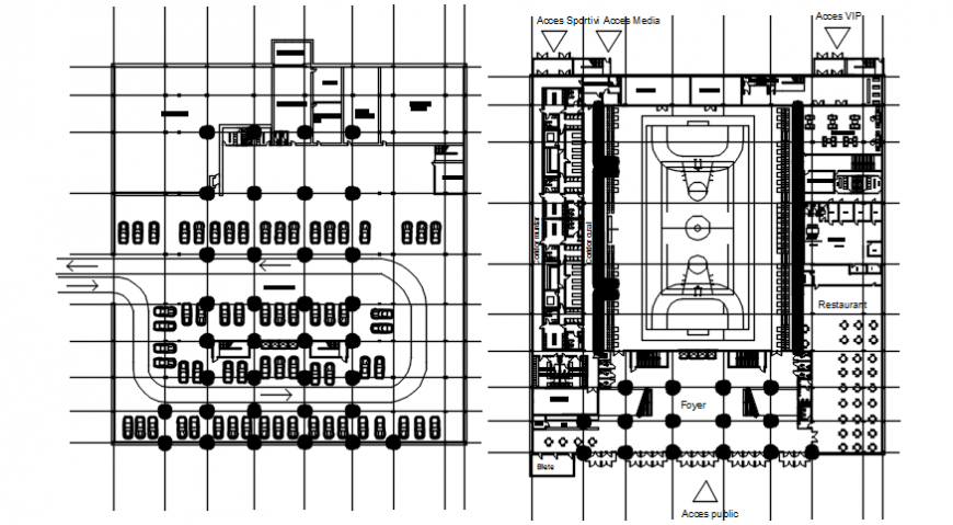
Autocad drawing of basketball stadium plans showing two different plans including basketball court plan and parking layout of whole site with all the required details like entry exit to site, circulation within site, space specification with circulation space and furniture layout, etc.
Uploaded by:
Eiz
Luna
