Residential house layout plan and framing plan structure details dwg file
Description
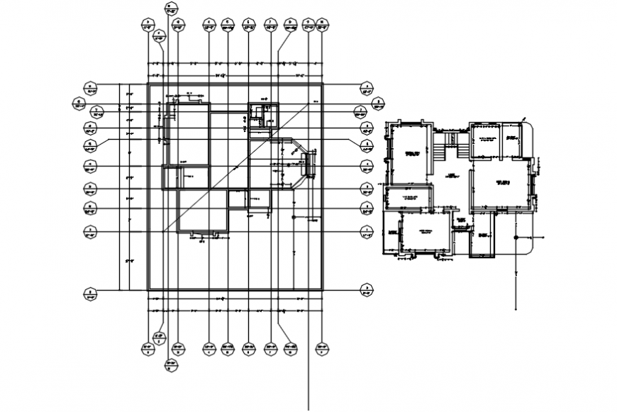
Residential house layout plan and framing plan structure details that includes a detailed view of main entry house door, drawing room and living room with family hall details kitchen and dining area, indoor staircases and laundry area and balcony, details and bedroom or master bedroom, toilets and bathroom with knee wall details provided. Steel pipe column with beam schedule details, dimensions details, measures and much more of house details.
Uploaded by:
Eiz
Luna

