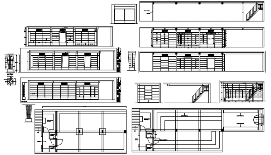
Shop all sided elevations and section cad drawing details dwg file
Description
Shop all sided elevations and section cad drawing details that includes a detailed view of doors and windows details, staircase and interior drawing details, furniture details provides, display area and bill counter details, sanitary facilities and much more of store details.
File Type:
DWG
File Size:
535 KB
Category::
Interior Design
Sub Category::
Showroom & Shop Interior
type:
Gold
Uploaded by:
Eiz
Luna

