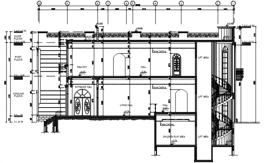
Front sectional drawing details of luxuries villa dwg file
Description
Front sectional drawing details of luxuries villa that includes a detailed view of flooring view with indoor and outdoor doors and windows view and staircase elevation and sectional view details, balcony view with wall design, parking area and dimensions and roof or terrace view and much more of villa details.
Uploaded by:
Eiz
Luna

