2d cad drawing of furniture layout 1 autocad software
Description
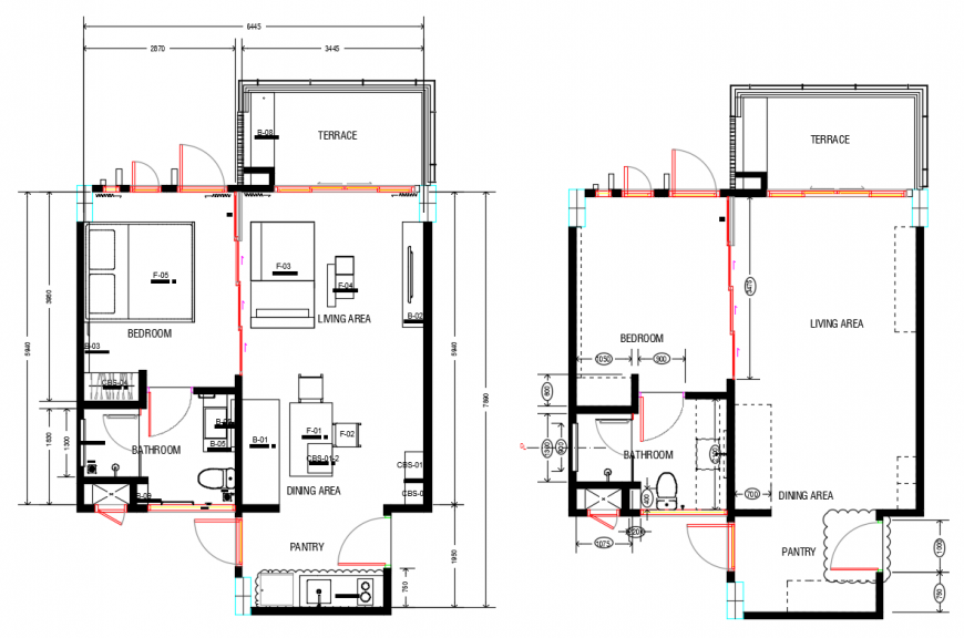
2d cad drawing of furniture layout autocad sofgtware detailed with left view of pantry area and straihght comntinuing to dining area and living room with one bedroom withy attached bathroom and balcony and terrace.
Uploaded by:
Eiz
Luna

