2d cad drawing of furniture layout 3 autocad software
Description
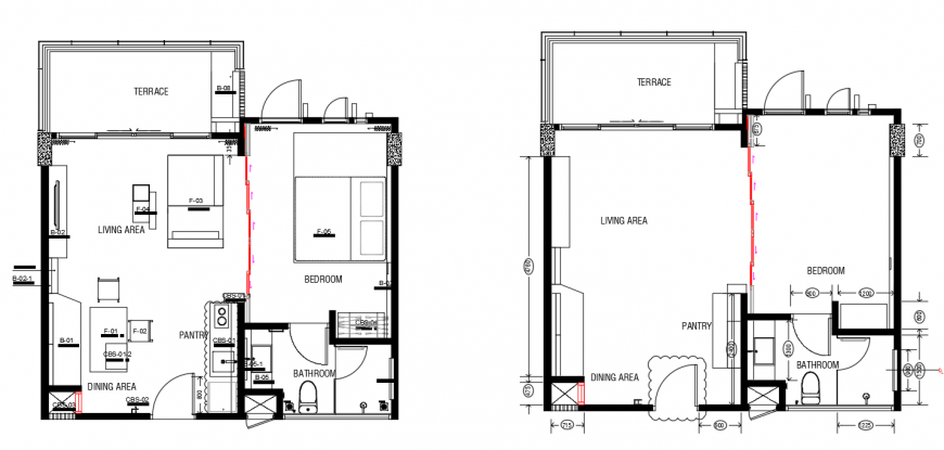
2d cad drawing of furniture layout 3 autocad software detailed with right side pantry and left side as dining area and living room and bedroom and attached bathroom with hall balcony and terrace.
Uploaded by:
Eiz
Luna

