2d CAD drawings details of kitchen area plan in autocad file
Description
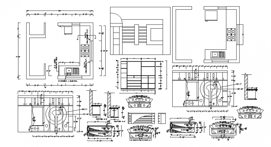
2d CAD drawings details of kitchen area plan in autocad file that shows kitchen layout plan details with kitchen furniture and automation blocks details. Gas-stove kitchen sink with dimension cabinet shelves details also included in drawings.
File Type:
DWG
File Size:
278 KB
Category::
Construction
Sub Category::
Kitchen And Remodeling Details
type:
Gold
Uploaded by:
Eiz
Luna
