2d CAD drawings of single story house plan elevation and section dwg file
Description
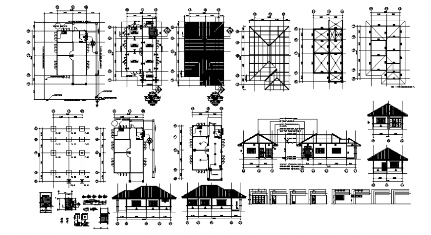
2d CAD drawings of single story house plan elevation and section dwg file that shows house different sides of elevation details with roofing structure details at ceiling and dimension hidden line details. House floor plan details with roof plan details and sectional details of the house also shown in drawings.
Uploaded by:
Eiz
Luna

