CAD drawings of bedroom 2d view floor plan dwg autocad file
Description
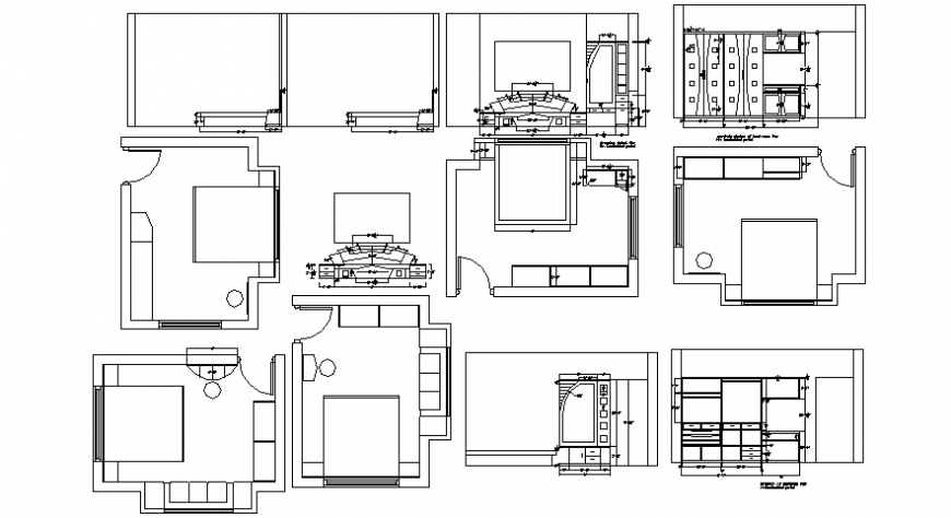
CAD drawings of bedroom 2d view floor plan dwg autocad file that shows bedroom plan details with furniture layout details in the room of double bed wardrobe furniture details and door window blocks details also included in the room.
File Type:
DWG
File Size:
74 KB
Category::
Interior Design
Sub Category::
Bathroom Interior Design
type:
Gold
Uploaded by:
Eiz
Luna

