2d view of kitchen units floor layout plan autocad software file
Description
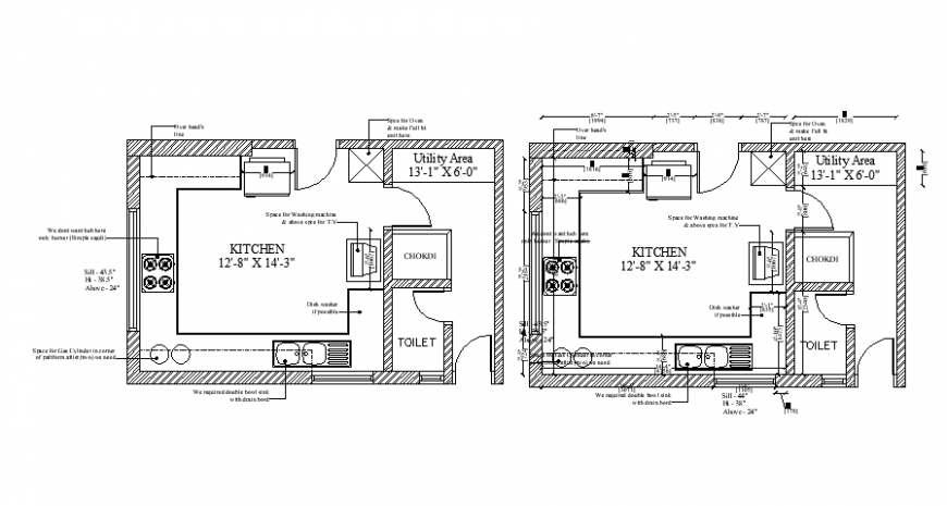
2d view of kitchen units floor layout plan autocad software file that shows kitchen floor plan details with kitchen furniture and automation blocks details along with kitchen sink cabinet shelves details also included in drawing. Dining table and chair details with exhauster chimney vent details also included in drawings.
File Type:
DWG
File Size:
58 KB
Category::
Construction
Sub Category::
Kitchen And Remodeling Details
type:
Gold
Uploaded by:
Eiz
Luna

