Drawings details of kitchen layout plan elevation dwg autocad file
Description
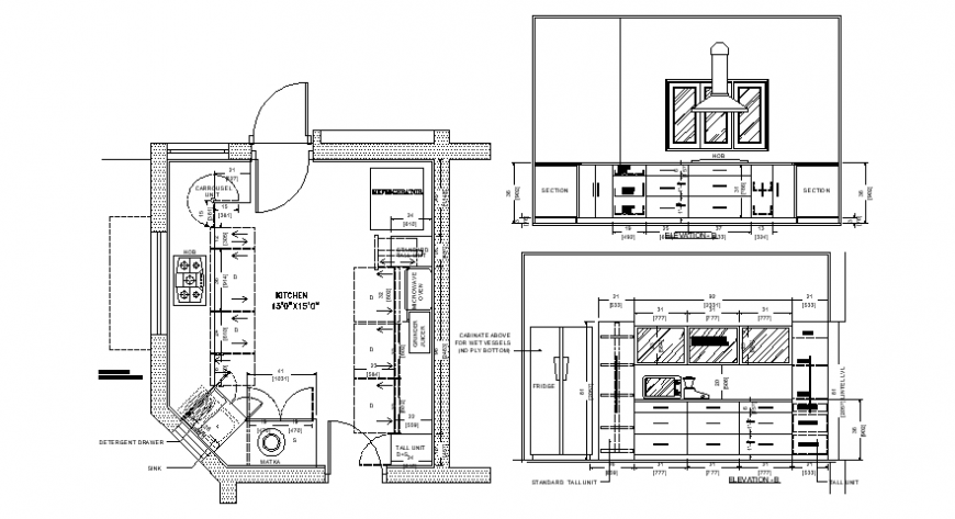
Drawings details of kitchen layout plan elevation dwg autocad file that shows kitchen floor plan details with kitchen furniture and automation blocks details along with kitchen sink cabinet shelves details also included in the drawing. Dining table and chair details with exhauster chimney vent details also included in drawings.
Uploaded by:
Eiz
Luna

